樓盤搜索
中大金融中心-港珠澳大橋-高端寫字樓-金融岛心轻轨上盖-升值空間無限-免稅 高層
樓盤編號:14462 更新日期:24/08/2018- 售價:170 萬
- 類型:住宅樓
- 地區:珠海橫琴
- 街道:中大金融中心-港珠澳大橋-高端寫字樓-金融岛心轻轨上盖-升值空間無限-免稅
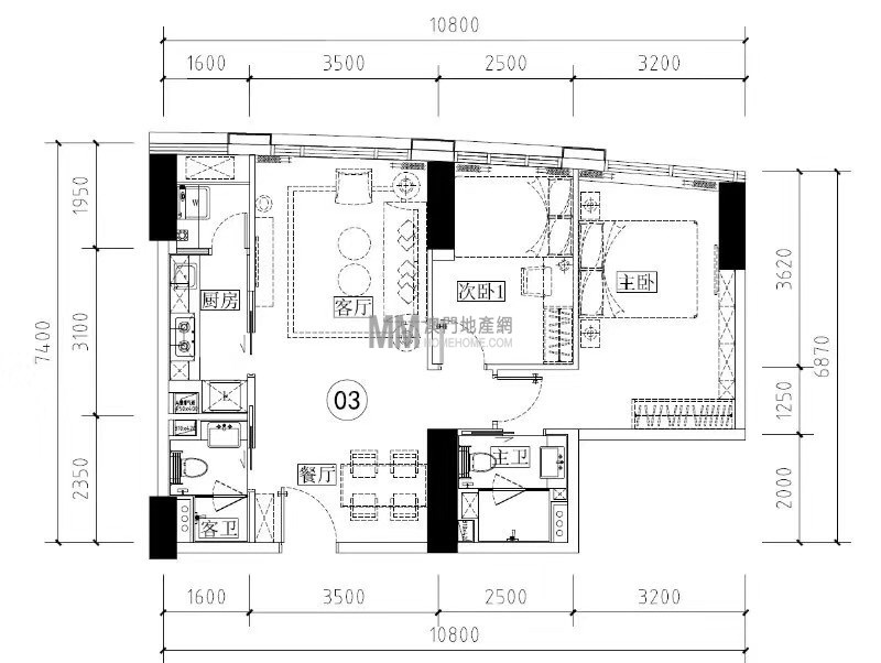
- 戶型:1 房 1 廳
- 面積:900 呎 / 900 呎
- 樓齡:-- 年
- 裝修:豪裝
- 景觀:海景,山景,街景,園景
- 坐向:向南
- 社區:
- 其他:東望洋區香洲
- 聯繫人:鄭小姐
- 中介人準照編號:
- +85254446545
房源描述
中大金融中心-港珠澳大橋-高端寫字樓-金融岛心轻轨上盖-升值空間無限-免稅
whatsapp:+85254446545
wechat:17520243621 微信同步 鄭小姐
中大金融 中心,金融岛心轻轨上盖
面積:61-73-128平
單價:32300元/平起
金融岛内性价比最高
=======
中大金融中心
【亮点】
●横琴金融岛核心位置,五萬家企業入駐
●金融岛轻轨站旁,口岸小面積寫字樓
●与全球第二大法拉第游艇码头为邻
●197米高度直瞰澳门,尊享澳门、山、海景
●港珠澳大橋延長線落腳點,輕軌高速機場全部擁有
●百萬人口繁華地段,國家級自貿區保稅區
●允許任何貨在區內直接交易
●澳門單牌車直接同行,橫琴口岸24小時通關
=====
中大金融中心
壹手樓盤免傭金 看房專車接送
帶妳了解更多樓市動態
不浮誇自己的專業和誠信,誠實做人,誠信做事
whatsapp:+85254446545
wechat:17520243621 微信同步 鄭小姐




